Úvod
Modely
Modely dřevostaveb KONTIO
Rodinné domy KONTIO
Bungalovy KONTIO
Víkendové domy KONTIO
Velké luxusní srubové domy
Virtuální prohlídky
Kolekce
Kontio styly
Domy na klíč
Technologie
Ekologie
Energetické parametry
Proces výroby
Požární odolnost
Kontio SmartLog
TM
Typy trámů
Kontio
Realizace
Ceník
O nás
O domech
Sruby
Napsali o nás
Domy na přání
Srubové domy KONTIO
Oblíbené modely
Katalogy
Kontakt
+420 777 565 102
marketing@kontio.cz
Tamoxifen-Retinopid €8.24
Iso-Kajastus A1 LH205x275 TA
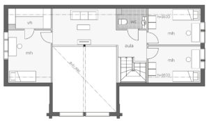
Dispozice A-první patro
Nezávazná poptávka
Náš katalog ke stažení
Upozornění: U tohoto obsahu je vyžadován JavaScript.